Sold Subject to Contract

Wendover Drive, Bedford

Bed icon  3    Bath icon      

£450,000

Save Saved
Contact Us

For further details on this property please call us

01234 271599


Book a Viewing

Features

  • EXTENDED
  • BAY FRONTED SEMI
  • THREE RECEPTION ROOMS
  • WC / SHOWER ROOM
  • ADDITIONAL BATHROOM
  • ENCLOSED REAR GARDEN
  • CHARACTER & CHARM
  • KITCHEN & UTILITY ROOM

Full Details

Probably our most requested house style, this three bedroomed BAY FRONTED semi-detached home has been thoughtfully EXTENDED to include an enlarged kitchen, family room, utility room and a WC/shower room. With kerb appeal in abundance and enough space to accommodate a growing family, this excellent home not only has plenty of character but also offers modern living within this highly sought-after area. A good sized rear garden, along with a garage and additional off-road parking, completes the exterior.

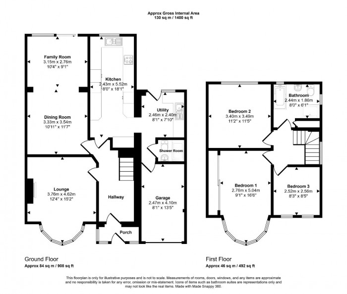
Ground Floor

Entrance Via / Entrance Porch

Entrance Hall

Lounge (4.62x3.76)

Kitchen (5.52x2.43)

Dining Room (3.54x3.33)

Family Room (3.15x2.76)

Utility Room (2.46x2.4)

WC / Shower Room

First Floor

Landing

Bedroom One (5.04x2.76)

Bedroom Two (3.49x3.4)

Bedroom Three (2.56x2.52)

Bathroom

Exterior

Garage (4.1x2.47)

Rear Garden

Driveway

Take advantage of the close proximity of Castle Quarter with its independent shops and restaurants, or maybe a stroll along Bedford's popular Embankment with its scenic walkways along the River Ouse. Wendover Drive is conveniently situated on the fringes of Bedford town centre, but also has easy access out to all major routes.

Floorplan for Wendover Drive, Bedford
EPC Graph for Wendover Drive, Bedford

Book a Viewing

1About You


@

2Pick a Day


  1. This Week
  2. Next Week
  3. In a Fortnight

3Select a Time



About Us

home means more than just bricks and mortar. home is a feeling that everyone should get to enjoy.

Read More
About Us

Sales Services

At home we consistently deliver outstanding results through our comprehensive and effective sales strategies that can be tailored to fit your own specific requirements.

Read More
Sales

Properties for Sale

We see homes and real people living real lives and show every one of them the consideration and respect they deserve.

Read More
Lettings

Register

Register for Property Updates

Register Here
Register

Valuation

How much is your property worth? Stop wondering and find out, with a property valuation from home estate agents.

Book Here
Valuation

Testimonials

Read what our clients say about home estate agents.

Read More
News

Meet the Team

Meet the Team that keep home estate agents moving.

Read More
Meet the Team

Contact Us

Contact us here and we can assist you further.

Contact Us
Contact Us
Rightmove Zoopla The Property Ombudsman trading standards On The Market