For Sale

Queens Crescent, Beds

Bed icon  2    Bath icon      

£330,000

Save Saved
Contact Us

For further details on this property please call us

01234 271599


Book a Viewing

Features

  • CHAIN FREE
  • TASTEFULLY DECORATED
  • LOUNGE
  • WC / SHOWER ROOM
  • KITCHEN WITH A DINING AREA
  • GARAGE & DRIVEWAY
  • GARDEN ROOM
  • LANDSCAPED REAR GARDEN

Full Details

VILLAGE LOCATION / CHAIN FREE: This beautifully presented and thoughtfully laid out two-bedroom semi-detached bungalow sits in a peaceful village setting and offers comfortable, low-maintenance living. The bright lounge overlooks the landscaped rear garden, creating a calm, welcoming space to relax or entertain. Adjacent is a well-equipped kitchen and dining area, providing a practical, sociable hub for everyday meals. Further accommodation comprises two well-proportioned bedrooms and a WC/shower room, with a versatile garden room that could serve as a home office or a studio. Outside, there is a landscaped rear garden, a garage and a driveway.

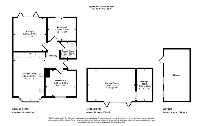
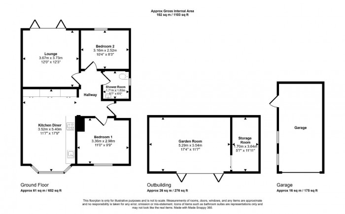
Ground Floor

Entrance Via

Entrance Hall

Kitchen / Diner (5.4x3.52)

Lounge (3.73x3.67)

WC / Shower Room

Bedroom One (3.36x2.98)

Bedroom Two (3.16x2.52)

Exterior

Garden & Storage Room (6.99x3.54)

Rear Garden

Driveway

Garage

This home is located in Clapham, a popular village with easy access to Bedford and the North Bedfordshire villages. Clapham itself offers riverside walks, a mini Tesco supermarket, a riverside pub & restaurant, a doctors surgery, a dental practice, a Post Office, and highly regarded schools. Bedfords train station is just two miles away for fast and frequent services to the capital.

Floorplan for Clapham, Beds

Book a Viewing

1About You


@

2Pick a Day


  1. This Week
  2. Next Week
  3. In a Fortnight

3Select a Time



About Us

home means more than just bricks and mortar. home is a feeling that everyone should get to enjoy.

Read More
About Us

Sales Services

At home we consistently deliver outstanding results through our comprehensive and effective sales strategies that can be tailored to fit your own specific requirements.

Read More
Sales

Properties for Sale

We see homes and real people living real lives and show every one of them the consideration and respect they deserve.

Read More
Lettings

Register

Register for Property Updates

Register Here
Register

Valuation

How much is your property worth? Stop wondering and find out, with a property valuation from home estate agents.

Book Here
Valuation

Testimonials

Read what our clients say about home estate agents.

Read More
News

Meet the Team

Meet the Team that keep home estate agents moving.

Read More
Meet the Team

Contact Us

Contact us here and we can assist you further.

Contact Us
Contact Us
Rightmove Zoopla The Property Ombudsman trading standards On The Market